ZUHAUS: kreuZUngspunkt kelHeim-Affecking für geist Und Seele
| Projektträger | Katholische Kirchenstiftung Heilig Kreuz |
| Projektstatus | beschlossen |
Mit dem Neubau eines solchen Begegnungszentrums soll nicht nur für die Katholikinnen und Katholiken in Affecking und Kelheim ein neues Zuhause geschaffen werden, sondern auch ein Ort entstehen, an dem sich das Leben vieler Menschen - im Sinne des Pfarreinamens Hl. Kreuz - kreuzt: Das umweltbewusst mit Holz konstruierte Funktionsgebäude soll die Möglichkeit bieten, sowohl kirchliche Feste als auch weltliche Veranstaltungen (wie zum Beispiel das Affeckinger Bürgerfest oder das Maibaumaufstellen) zu beherbergen. Nicht nur die Pfarrei(en), sondern auch die Vereine sollen hier Räumlichkeiten bekommen, um sich zu treffen und aktiv das Leben vor Ort zu bereichern. Ein besonderes Augenmerk gilt hierbei auch den Kindern und Jugendlichen, die sich in der Pfarreiengemeinschaft bereits aktuell als stark etablierte Jugendgruppe auf vielfältige Weise einbringen. Durch Begegnungen und Gemeinschaft, die sie hier erfahren, soll die Grundlage für zukünftiges ehrenamtliches Engagement geschaffen werden, das unsere Gesellschaft dringend benötigt. Auf diese Weise wirkt das Projekt stärkend für das gesellschaftliche und kulturelle Leben.
Durch den Neubau soll auch ein neues Zentrum, ein neuer Mittelpunkt für den Stadtteil Affecking geschaffen werden, der im Zuge der Eingemeindung verloren gegangen war. Ferner wird dadurch auch ein Begegnungsraum für Kelheim auf der südlichen Seite der Donau eröffnet.
Außerdem wird dadurch ein wichtiger Beitrag geleistet, um das ehrenamtliche Engagement zu fördern: in den kirchlichen Gruppierungen und Verbänden, aber auch in den weltlichen Vereinen und Organisation des Stadtteils. Das neue Gebäude soll Anlaufpunkt und Zuhause für viele werden. Dies betrifft folgende kirchliche Vereine: KDFB Affecking, KDFB St. Pius, KAB Kelheim und folgende weltliche Vereine: FF Affecking, Schützen Affecking, SC Kelheim, VfL Kelheim, Siedler Affecking, Alpenverein Kelheim.
Um ein Zusammentreffen mehrerer Generationen zu ermöglichen, wird das Gebäude einstöckig und barrierearm zugänglich gestaltet (z.B. eingebaute "Hörschleife": in den Boden verlegte Induktionsschleifen, die Hörqualität für Träger von Hörgeräten verbessern).
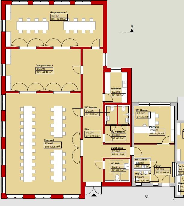
Die Räumlichkeiten sollen auch für Präsentationen, Schulungen, Vorträge, etc. genutzt werden können. Auch ein Ort für Seelsorge soll dadurch entstehen. Eine Anlaufstelle für Menschen mit Sorgen und Problemen.
Eine Teeküche dient der Versorgung der Gruppen oder bei Veranstaltungen.
Die LEADER-Förderung soll sich auf die Kostengruppe 300 (Bauwerk - Baukonstruktion) und 400 (Technische Anlagen) beziehen.
Copyrightinformationen
Andreas Ehlers
Andreas Ehlers
Andreas Ehlers
Landschaftspflegeverband Kelheim VöF e.V.
Landschaftspflegeverband Kelheim VöF e.V.
Landschaftspflegeverband Kelheim VöF e.V.
Landschaftspflegeverband Kelheim VöF e.V.
Michaela Powolny
Cookie-Einstellungen
Wir verwenden Cookies, um Ihnen ein optimales Webseiten-Erlebnis zu bieten. Dazu zählen Cookies, die für den Betrieb der Seite notwendig sind, sowie solche, die lediglich zu anonymen Statistikzwecken, für Komforteinstellungen oder zur Anzeige personalisierter Inhalte genutzt werden. Sie können selbst entscheiden, welche Kategorien Sie zulassen möchten. Bitte beachten Sie, dass auf Basis Ihrer Einstellungen womöglich nicht mehr alle Funktionalitäten der Seite zur Verfügung stehen.
Sie haben die personalisierten Cookies nicht ausgewählt. Um diese Seite betreten zu können, müssen sie diese per Auswahl zulassen.
Sie haben das Komfort-Cookie nicht ausgewählt. Um den Zugriff auf das Element oder die Seite dauerhaft zu gewähren, müssen Sie dieses per Auswahl zulassen.
Notwendig:
Diese Cookies sind zur Funktion der Website erforderlich und können in Ihren Systemen nicht deaktiviert werden. In der Regel werden diese Cookies nur als Reaktion auf von Ihnen getätigte Aktionen gesetzt, die einer Dienstanforderung entsprechen, wie etwa dem Festlegen Ihrer Datenschutzeinstellungen, dem Anmelden oder dem Ausfüllen von Formularen. Sie können Ihren Browser so einstellen, dass diese Cookies blockiert oder Sie über diese Cookies benachrichtigt werden. Einige Bereiche der Website funktionieren dann aber nicht. Diese Cookies speichern keine personenbezogenen Daten.
Name: ASP.NET_SessionId
Dauer: Bis zum Beenden der Browsersession
Art: 1st Party
Kategorie: Notwendig
Beschreibung: Sitzungscookie für allgemeine Plattformen, der von Websites verwendet wird, die mit Microsoft .NET-basierten Technologien geschrieben wurden. Wird normalerweise verwendet, um eine anonymisierte Benutzersitzung durch den Server aufrechtzuerhalten.
Name: __RequestVerificationToken
Dauer: Bis zum Beenden der Browsersession
Art: 1st Party
Kategorie: Notwendig
Beschreibung: Wird vom System gesetzt, sobald ein Anmeldeformular auf der Seite angezeigt wird, es werden noch keine Inhalte geschrieben.
Name: ld-cookieselection**
Dauer: 30 Tage
Art: 1st Party
Kategorie: Notwendig
Beschreibung: Speichert die Einstellung der Cookie-Auswahl
Komfort:
Durch diese Cookies können wir Ihnen eine erweiterte Funktionalität bereitzustellen. Die Cookies können von uns selbst, oder von Drittanbietern gesetzt werden, deren Dienste wir auf unseren Seiten verwenden. Wenn Sie diese Cookies nicht zulassen, funktionieren einige oder alle dieser Dienste möglicherweise nicht einwandfrei.