Sportfunktionsgebäude Laberpoint TC Langquaid
| Projektträger | TC Langquaid |
| Projektstatus | beschlossen |
Der TC Langquaid beabsichtigt, ein neues Sportfunktionsgebäude zu errichten. Ziel ist es, für den TC Langquaid sowie andere Vereine und Gruppen ein Funktionsgebäude mit Terrasse und Umgriff als Sportvereinsheim sowie als vereins- und generationenübergreifender Treffpunkt zu planen und zu bauen. Das multifunktional nutzbare Gebäude steht anderen Initiativen und Gruppen im Rahmen der Nutzungsbedingungen zur Verfügung.
Mit dem eingeschossigen Neubau soll ein generationsübergreifender Begegnungsraum für Sport- und Interessensgruppen sowie unterschiedliche Vereine geschaffen werden. Das Funktionsgebäude soll die Möglichkeit bieten, dass Veranstaltungen (Vereinsaktivitäten, kulturelle Veranstaltungen, Feste etc.) effizienter durchgeführt werden können.
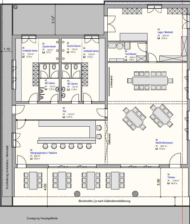
Der Multifunktionsraum soll mit Tischen, Stühlen und Leinwand ausgestattet werden und größeren Gruppen den Platz für die Durchführung ihrer Angebote und Veranstaltungen sowie für Präsentationen, Schulungen, Vorträge etc. bieten. Er soll durch eine Außentür separat betretbar sein. Kleinere Gruppen können sich in dem Kleingruppenraum mit Teeküche aufhalten. Dieser ist durch einen Flur sowohl mit dem Multifunktionsraum als auch mit den Toiletten und Duschen verbunden. Zudem ist ein Lager eingeplant, ein Technikraum sowie eine Werkstatt für z. B. den örtlichen Radverein TSV Langquaid - Abteilung Radsport. Eine Terrasse dient dem Aufenthalt im Freien und dient zusätzlich sozialen Zwecken.
Das Gebäude wird barrierearm zugänglich gestaltet. So sollen z.B. keine Türschwellen vorhanden sein, die das Durchfahren mit einem Rollstuhl erschweren.
Zudem dienen die Räumlichkeiten auch für Präsentationen, Schulungen, Vorträge etc..
Ziel ist es auch, die zeitgemäße und zielgruppenorientierte Angebote für Kinder und Jugendliche in ihrer Organisation und Durchführung zu sichern.
Es entlastet zudem die stark frequentierte Turnhalle der Gemeinde.
Das Funktionsgebäude soll energieeffizient und in ökologisch ausgerichteter Bauweise gebaut werden. Dazu gehören eine Holzständerbauweise mit heimischem Holz, Stromgewinnung über eine PV-Anlage mit Speicher, eine Wärmepumpe sowie die umgreifende Begrünung mit vorrangig standortangepassten heimischen Pflanzen.
Bestandteile des Projekts sind die Kostengruppen 300, 400 und 500 der Kostenberechnung nach DIN 276 für das Sportfunktionsgebäude Laberpoint. Dies betrifft die Baukonstruktionen sowie die Technischen Anlagen des Bauwerks und die Außenanlagen (Terrasse und begrünter Außenumgriff).
Copyrightinformationen
Andreas Ehlers
Andreas Ehlers
Andreas Ehlers
Landschaftspflegeverband Kelheim VöF e.V.
Landschaftspflegeverband Kelheim VöF e.V.
Landschaftspflegeverband Kelheim VöF e.V.
Landschaftspflegeverband Kelheim VöF e.V.
Michaela Powolny
Cookie-Einstellungen
Wir verwenden Cookies, um Ihnen ein optimales Webseiten-Erlebnis zu bieten. Dazu zählen Cookies, die für den Betrieb der Seite notwendig sind, sowie solche, die lediglich zu anonymen Statistikzwecken, für Komforteinstellungen oder zur Anzeige personalisierter Inhalte genutzt werden. Sie können selbst entscheiden, welche Kategorien Sie zulassen möchten. Bitte beachten Sie, dass auf Basis Ihrer Einstellungen womöglich nicht mehr alle Funktionalitäten der Seite zur Verfügung stehen.
Sie haben die personalisierten Cookies nicht ausgewählt. Um diese Seite betreten zu können, müssen sie diese per Auswahl zulassen.
Sie haben das Komfort-Cookie nicht ausgewählt. Um den Zugriff auf das Element oder die Seite dauerhaft zu gewähren, müssen Sie dieses per Auswahl zulassen.
Notwendig:
Diese Cookies sind zur Funktion der Website erforderlich und können in Ihren Systemen nicht deaktiviert werden. In der Regel werden diese Cookies nur als Reaktion auf von Ihnen getätigte Aktionen gesetzt, die einer Dienstanforderung entsprechen, wie etwa dem Festlegen Ihrer Datenschutzeinstellungen, dem Anmelden oder dem Ausfüllen von Formularen. Sie können Ihren Browser so einstellen, dass diese Cookies blockiert oder Sie über diese Cookies benachrichtigt werden. Einige Bereiche der Website funktionieren dann aber nicht. Diese Cookies speichern keine personenbezogenen Daten.
Name: ASP.NET_SessionId
Dauer: Bis zum Beenden der Browsersession
Art: 1st Party
Kategorie: Notwendig
Beschreibung: Sitzungscookie für allgemeine Plattformen, der von Websites verwendet wird, die mit Microsoft .NET-basierten Technologien geschrieben wurden. Wird normalerweise verwendet, um eine anonymisierte Benutzersitzung durch den Server aufrechtzuerhalten.
Name: __RequestVerificationToken
Dauer: Bis zum Beenden der Browsersession
Art: 1st Party
Kategorie: Notwendig
Beschreibung: Wird vom System gesetzt, sobald ein Anmeldeformular auf der Seite angezeigt wird, es werden noch keine Inhalte geschrieben.
Name: ld-cookieselection**
Dauer: 30 Tage
Art: 1st Party
Kategorie: Notwendig
Beschreibung: Speichert die Einstellung der Cookie-Auswahl
Komfort:
Durch diese Cookies können wir Ihnen eine erweiterte Funktionalität bereitzustellen. Die Cookies können von uns selbst, oder von Drittanbietern gesetzt werden, deren Dienste wir auf unseren Seiten verwenden. Wenn Sie diese Cookies nicht zulassen, funktionieren einige oder alle dieser Dienste möglicherweise nicht einwandfrei.